Licheni e asimmetrie

Licheni e asimmetrie

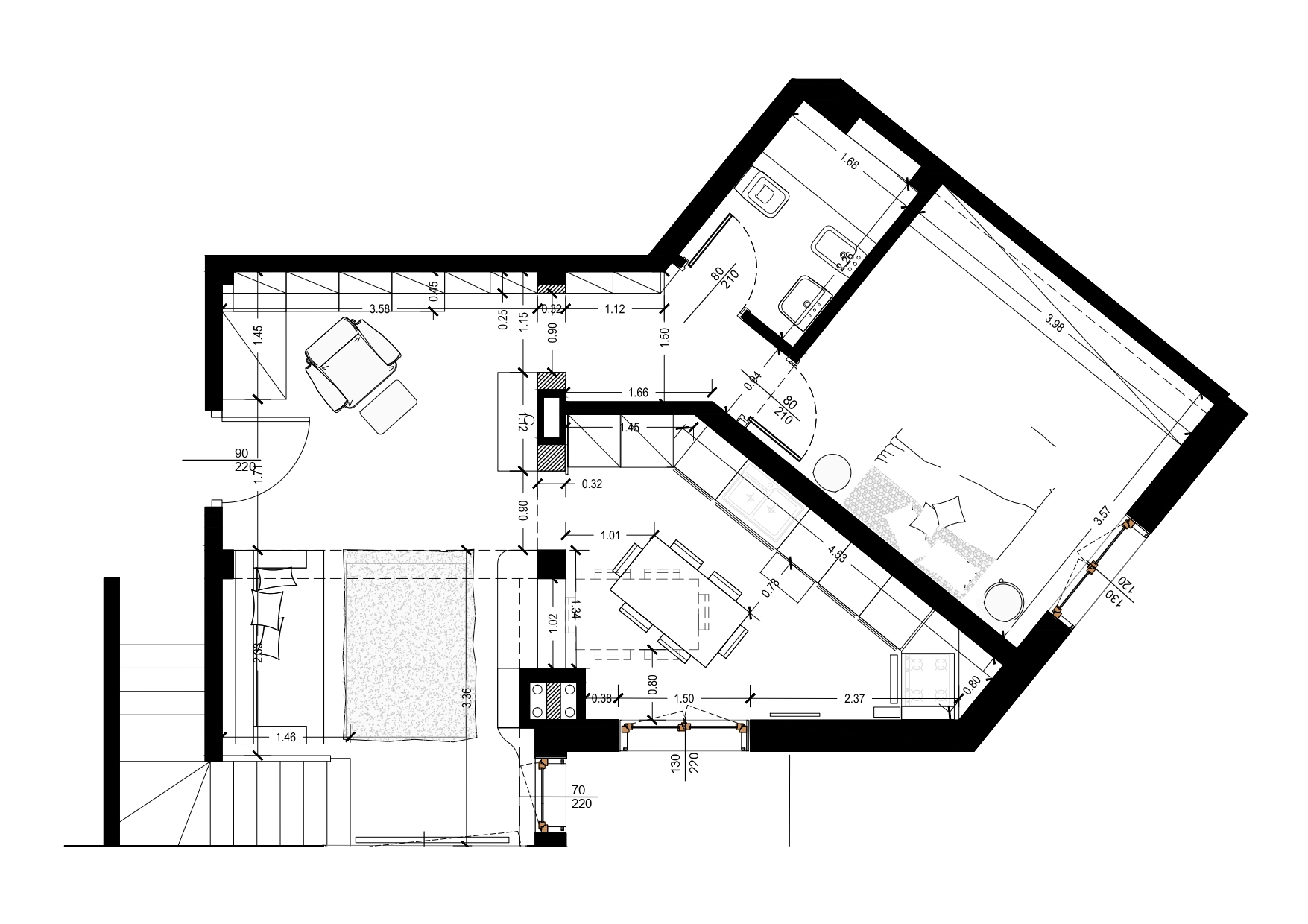
…metamorfosi di progetto, licheni e assimmetrie - quando un’intuizione di colore e il coraggio degli angoli diventano elementi ri-generatori di un appartamento. Dettagli vintage e punti luce studiati valorizzano le linee essenziali degli arredi e scaldano gli ambieni.

  • oggetto: Progettazione e realizzazione ridistribuzione interna e relooking abitazione privata
  • committente: privato
  • luogo: Trento
  • data: 2017