Bianco e trasparenza

Bianco e trasparenza

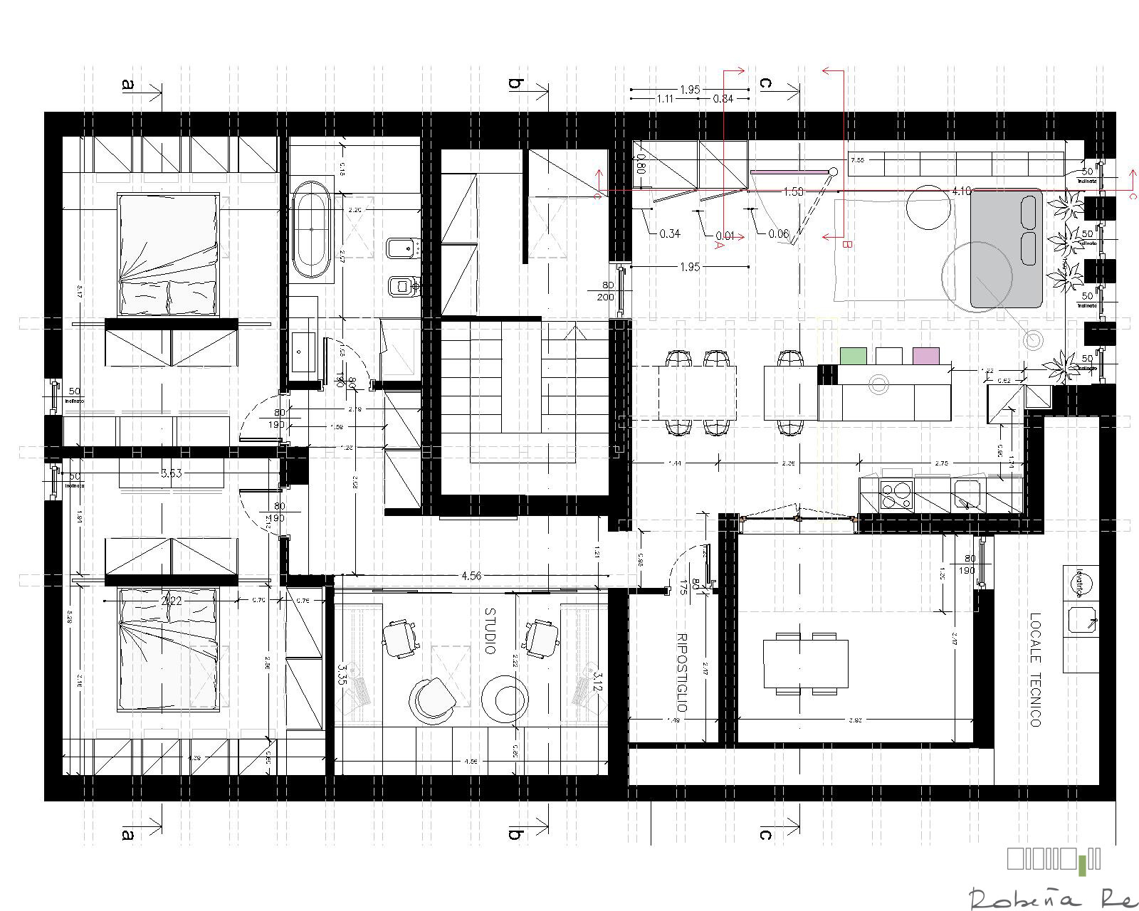
…aggiungere un pezzetto di storia alla vita di questo sottotetto, valorizzandone la forma grazie all’uso massivo del bianco e della luce. Pochi arredi mirati, divisioni sonore trasparenti e discrete caratterizzano questa nicchia studio: rifugio creativo per le saporite produzioni dei suoi brillanti abitanti.

  • oggetto: Progettazione e realizzazione della distribuzione interna e relooking abitazione privata - qui la nicchia studio
  • committente: privato
  • luogo: Trento
  • data: 2018
  • foto: Andrea Giacomelli fotografo